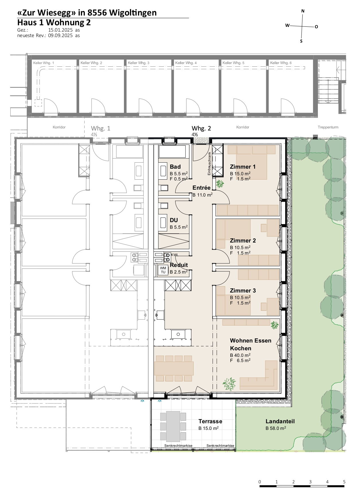
Wohnung 1.2

Unterdorfstrasse 7

Wohnung 1.2
Erdgeschoss
4.5
100.5 m2
73.0 m2
8.5 m2
CHF 0
verkauft

Im Kaufpreis ist die schlüsselfertige Wohneinheit (Wohnung/Haus) im Standardausbau enthalten. Zusätzliche Ausbauwünsche sind je nach Baufortschritt möglich. Die auf dieser Website gemachten Angaben, Visualisierungen oder die Grundrisse dienen der allgemeinen Information und erfolgen ohne Gewähr. Sie bilden keinen Bestandteil einer vertraglichen Vereinbarung. Ausführungsbedingte Änderungen und Anpassungen bleiben vorbehalten.

Bleiben Sie mit uns in Kontakt!

Bitte addieren Sie 2 und 5.